公開日:2024.10.28 | 更新日: 2026.03.12 | 費用・制度
注文住宅の費用相場は?価格帯・広さ別の相場と費用を抑えるコツを解説
目次
はじめの費用・制度
家づくりを進めるうえでは、価格と品質のバランスが非常に重要です。
一建設では、年間約9,000棟超の供給実績を活かし、コストを抑えながらも高品質な注文住宅を実現しています。
建築に必要な工程をすべて含んだ安心のコミコミ価格に加え、着工金や中間金が不要な資金計画の立てやすさも魅力です。
自社一貫体制による中間マージンの排除など、低価格を支える仕組みについて、詳しくは価格ページをご覧ください。
「注文住宅を建てたいけど、一体どれくらいお金が必要なんだろう……。」と疑問に思っている方もいるのではないでしょうか。そこでこの記事では、注文住宅の費用の内訳や広さ別の相場、価格帯別に実現できる家のイメージを解説します。
記事の後半では、予算内で理想の家づくりを実現するコツも紹介しますので、これから注文住宅を建てようと検討している方は参考にしてください。
1. 注文住宅の費用相場の内訳
注文住宅を建てる際は、土地や建築費用、諸費用などさまざまな費用がかかります。ここからは注文住宅がいくらかかるのか、それぞれの内訳を解説します。
1.1. 注文住宅の土地取得費用の相場
注文住宅の土地取得費用には、土地代金だけでなく仲介手数料や印紙税などの諸経費も含まれます。内訳は手付金、残代金、購入諸費用などで、購入諸費用は総額の10~12%程度が目安です。
ただし、土地条件や工事スケジュール、住宅ローンの借り入れ方法によってはさらに高額になる可能性があります。スムーズな進行のためには、施工会社を先に決定し、助言を得ながら土地探しをおこなうことも効果的です。
なお、2024年度フラット35利用者調査によると、土地付きで注文住宅を建てる場合の平均所要資金は5,007万円(前年比104万円増加)でした。地域別のデータを見ると、首都圏とその他地域では所要資金に顕著な差が見られます。
| 所要資金 | 建設費 | 土地取得費 | 頭金(手持金) | |
|---|---|---|---|---|
| 全国平均 | 5,007.1万円 | 3,512.0万円(70.1%) | 1,495.1万円(29.9%) | 460.7万円(10.1%) |
| 首都圏 | 5,790.5万円 | 3,505.6万円(60.5%) | 2,285.0万円(39.5%) | 663.5万円(12.9%) |
| 近畿 | 5,192.7万円 | 3,366.7万円(64.8%) | 1,826.0万円(35.2%) | 512.5万円(11.0%) |
| 東海 | 4,975.5万円 | 3,615.7万円(72.7%) | 1,359.8万円(27.3%) | 372.6万円(8.1%) |
| その他地域 | 4,534.2万円 | 3,549.1万円(78.3%) | 985.0万円(21.7%) | 355.1万円(8.5%) |
1.2. 注文住宅の建築費用の相場
なお、2024年に実施された国土交通省の調査によると、新築注文住宅の建築費用の全国平均価格は4,588万円で、延べ床面積は112.8㎡、坪単価約134.5万円でした。前年度と比較して550万円上昇しており、建築コストの増加傾向が顕著に表れています。
参照:国土交通省「令和6年度 住宅市場動向調査報告書」
注文住宅の建築費の内訳は、本体工事費・別途工事費に分けられます。注文住宅の本体工事費は建築費全体の約70〜80%を占め、以下の費用が含まれます。
- 基礎
- 土台
- 構造体
- 内外装
- 屋根
- 設備など
別途工事費とは、建物本体以外の屋外設備にかかる費用を指し、建築費用全体の約15〜20%を占めます。施工会社によっては、別途工事費を関連工事費や付帯工事費など、異なる名称で呼ぶこともあります。
別途工事費には主に地盤調査、塀や門・庭などの外構工事、電気の配線、給排水・ガスの引き込み工事などが含まれます。また、土地の状態次第では地盤改良工事をおこなうこともあり、これらも別途工事費に該当します。
注文住宅の予算を立てる際には、本体工事費だけでなく、これらの別途工事費も考慮に入れることが不可欠です。しっかり計画を立てることで、予想外の出費を抑え、理想の住まいを実現できます。
1.3. 注文住宅の諸費用の相場
住宅購入時には、工事費用以外にも以下のような税金や手数料が発生します。
- 不動産取得税
- 登録免許税
- 不動産会社仲介手数料
- 住宅ローン手数料
- 火災保険料
- 表示登記費用
- 印紙代など
注文住宅の場合、これらの諸費用は通常、土地代と建築費用の合計額の10〜12%程度を見込む必要があります。建築総額ごとの目安は以下のとおりです。
| 建築総額 | 諸費用の目安 |
|---|---|
| 2,500万円 | 250〜300万円 |
| 3,000万円 | 300〜360万円 |
| 4,000万円 | 400〜480万円 |
| 5,000万円 | 500〜600万円 |
上記に加え、住宅ローンを利用する場合は、印紙税やローン保証料、団体信用生命保険料、抵当権設定登記費用などの追加費用も考慮しなければなりません。
これらの諸経費は、住宅購入の全体的な予算に大きな影響を与えるため、事前に十分な計画と準備が重要です。
注文住宅の諸費用をもっと知りたい方は、下記をご覧ください。
>>注文住宅の諸費用の内訳や相場の目安はいくら?シミュレーションや節約方法も紹介
2. 注文住宅の費用相場や広さの平均
国土交通省の令和6年度住宅市場動向調査によると、注文住宅の全国平均は面積約113.8m2、建築費は土地購入費用を除いた場合約4,695万円、含めると約6,777万円でした。
地域差はあるものの、一般的に約110m2(33坪)の注文住宅では、建築費に4,500万円程度かかると想定できます。
ただし、希望条件や地域特性、素材の選択などにより実際の費用は変動するため、プランニングの際はより詳細な見積もりが必要です。
2.1. 注文住宅にかかる費用相場
令和6年度住宅市場動向調査によると、注文住宅の平均建築費は全国で6,188万円(土地購入資金含む)となっています。一方、三大都市圏での調査では、分譲戸建て住宅が4,214万円、分譲集合住宅が4,679万円、中古戸建て住宅が2,917万円、中古集合住宅が2,919万円でした。
注文住宅が最も高額ですが、これは土地購入費用も含まれているためです。新築物件は中古物件より高額となり、集合住宅は戸建て住宅より高額な傾向が見られます。あくまで目安ですが、住宅購入を検討する際の参考にしてください。
2.2. 注文住宅の広さの平均
注文住宅の平均床面積は、全国で約113.8m2です。一方、三大都市圏(首都圏・中京圏・近畿圏)では121.5m2と、全国平均をやや上回っています。
この背景として考えられるのは、三大都市圏の自己資金と借入額が過去最高額となっていることです。
令和6年度住宅市場動向調査のデータによれば、住宅建築と土地購入を合わせた総購入資金は、全国平均で6,188万円、三大都市圏平均で7,364万円と1,000万円以上の差となっています。このうち自己資金の割合は、全国で32.2%(1,992万円)、三大都市圏で36.8%(2,676万円)を占めています。
これらの金銭的な要因が、三大都市圏の平均床面積が地方よりも広くなっている主な理由と考えられるでしょう。
都市部では土地価格が高いにも関わらず、より高額な資金を投入できることで、結果的に広い床面積を確保できていると推測されます。
3. 価格帯別で実現できる注文住宅

3.1. 1,000万円台の注文住宅
1,000万円台の注文住宅では、コスト効率を重視したシンプルな設計がされていることがほとんどです。例えば、ビニールクロスや基本的な内装材を使用し、間取りも簡素化されています。
シンプルだからこそ、家具やファブリックの変更で容易にインテリアの雰囲気を変えられるメリットがあります。一建設のようなパワービルダーは基本設計プランの活用や大量仕入れ、一貫した自社管理などでコストを抑えつつ、性能を維持しているので、1,000万円台でも十分に快適なマイホームが手に入るでしょう。
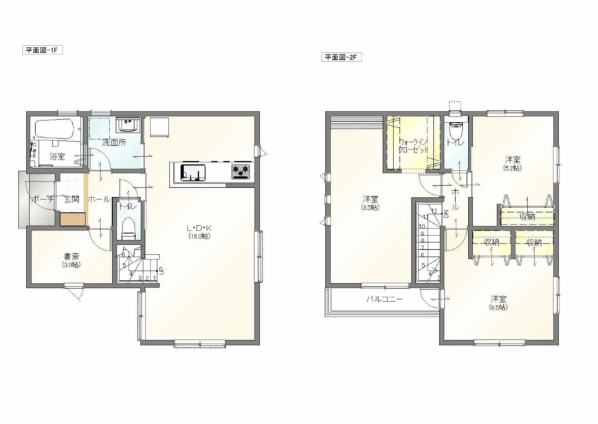
例えば、一建設では3LDK(26.9坪)の2階建て住宅を建築することも可能です。(参考価格1,660万円)


コンパクトでありながら、大型のウォークインクローゼット(WIC)やテレワーク用の書斎など、ライフスタイルに合った機能が充実したプランです。
>>間取り・家づくりのシミュレーション|2階建て 3LDK+D+WIC 間口:西
また、一建設の価格設定に関して詳しく知りたい方は下記をご覧ください。
>>価格について
また、一建設のサービスの特徴が良く分かるコンセプトブックや建てられる家のイメージがつく実例集を無料で贈呈中です。
お気軽にお問合せください。
3.2. 2,000万円台の注文住宅
2,000万円台の注文住宅は、予算の配分次第で多様にできる可能性を秘めています。
すべての希望を実現することは難しいかもしれませんが、優先順位をつけるなどの工夫で、理想の要素を取り入れることができます。例えば、内装を控えめにし、システムバスはグレードアップするなど、メリハリのある予算配分が可能です。
さらに、建築費だけでなく、家具や設備など家全体にかかるコストを総合的に考えることも重要です。内装にはコストをかけず質の良い家具を購入したり、既存の家具を活用してドアや窓に予算を振り分けたりするなど、柔軟な発想で予算を最大限に活用できます。
予算内で満足のいく家づくりを実現するには、希望条件の優先順位を家族で話し合い、総合的な視点で家づくりを進めることが重要です。
例えば、一建設では4LDK(37.3坪)の2階建て住宅を建築することも可能です。(参考価格2,100万円)


家族が集まるLDKは、約20畳の広さに吹き抜け天井をつくり、贅沢な空間に。2階の洋室2部屋と屋上にはバルコニーを設置するなど、予算配分にメリハリをつけることで理想の家づくりを実現しています。
>>間取り・家づくりのシミュレーション|2階建て 4LDK+WIC+SIC 間口:東
3.3. 3,000万円台の注文住宅
3,000万円台の家は幅広い選択肢が得られます。3,000万円前半では標準的なグレードと広めの家が建てられ、3,000万円台後半ではより高品質な設備や自由度の高いデザイン・間取りを実現できるでしょう。
予算内で理想の家を建てるには、お金をかける項目とコストを抑える項目のバランスが重要です。例えば、壁材を部屋によって使い分けたり、外観と内装でグレードを調整したり、LDKと他の部屋で床材を変えたりするなど、優先順位をつけて選択できます。
予算内でできること・できないことを選ぶ必要があるため、プラン決定に時間はかかりますが、家族での話し合いを通じて、自分たちが本当に望む住まいの姿を明確にして家づくりに臨みましょう。
3.4. 4,000万円台の注文住宅
全国の注文住宅の平均建築費用は4,695万円です。そのため4,000万円台の予算をかければ、希望条件に応じた自由なプランニングが可能です。
例えば、ハイグレードの設備を導入したり、漆喰などの自然素材をふんだんに使用したりと、さまざまなこだわりを反映できます。さらに、中庭のあるコの字型の家など、空間設計に工夫を凝らした大胆なプランも選択可能です。
また、間取りの自由度も高くなり、広々LDK+3〜4部屋、LDK+2〜3部屋+土間収納やウォークインクローゼット(WIC)など、家族構成やライフスタイルに合わせてゆとりある住まいを実現できます。
4. 注文住宅の坪数別でかかる費用の目安

注文住宅の建築費は、1平方メートルあたり平均約30万円と想定されます。ただし、この金額は施工会社や地域、時期によって大きく変動する可能性があります。
実際の費用は条件や要望に応じて変わるため、具体的な見積もりは専門家に相談するのがおすすめです。
4.1. 30坪の注文住宅でかかる費用の目安

30坪(約100平方メートル)の土地に家を建てる場合、建築費の目安は1平方メートルあたり30万円として計算すると、約3,000万円となります。
これは3〜4人のファミリー向けの新築戸建て住宅として一般的な広さです。ただし、この金額は建物の本体価格のみで、土地取得費用は別途必要となります。また、3,000万円はあくまで平均値であり、ローコストのパワービルダーを選択すれば費用を抑えられる可能性があります。
そのため、3〜4人のファミリー向けの注文住宅を検討する際は、30坪を目安に居住面積を考えるのが良いでしょう。30坪あると家族の成長や生活スタイルの変化にも対応しやすい余裕のある空間を得られます。
4.2. 35坪の注文住宅でかかる費用の目安

35坪(約115平方メートル)の土地に家を建てる場合、建築費の目安は1平方メートルあたり30万円として計算すると、約3,500万円となります。
35坪は3〜4人家族がゆとりをもって暮らせるスペースがあり、LDKや個室を広めに確保可能です。また、家族それぞれの個室に加え、ウォークインクローゼット(WIC)や土間収納、パントリーなどの収納スペースを充実させやすいでしょう。
30坪の家より間取りの自由度や収納力が増す一方、40坪の家よりコストを抑えられるため、バランスの良い広さといえます。
4.3. 40坪の注文住宅でかかる費用の目安

40坪(約132平方メートル)の土地に家を建てる場合、建築費の目安は1平方メートルあたり30万円として計算すると、約4,000万円となります。
40坪になると5人家族でもゆとりある空間となり、4人家族でも寝室や子ども部屋以外に趣味のための専用スペースを設けることが可能です。さらに、二世帯住宅の建築も視野に入れられます。
一人一人のプライバシーを確保しつつ、共有スペースも広々と設計できるため、家族の好みやライフスタイルに合わせたこだわりの空間や、オリジナリティあふれる部屋を実現しやすい広さです。
5. 注文住宅の費用を抑えるコツと注意点
家づくりの過程では、こだわりと費用のバランスに悩むことも少なくありません。そこで、ここからは予算内で理想の家づくりを目指すために、注文住宅の費用を抑えるコツと注意点を解説します。
5.1. コツ①:建物の形や間取りをシンプルにする
建物の形や間取りを可能な限りシンプルにすることで、建築費用を抑えられます。使用する材料が少なく、簡単な施工で工期を短縮できるためです。
例えば、外観は凸凹が少ないキューブ型にする、屋根は片流れ屋根や切妻屋根にするなど、なるべくシンプルな形状を選びましょう。
また、部屋数を減らす、廊下など部屋以外のスペースを減らすなど、可能な限りコンパクトな間取りにするのもおすすめです。延べ床面積を小さくすると、材料費や施工費を抑えられます。
5.2. コツ②:平屋ではなく2階建てとする
同じ床面積でも、平屋は2階建てに比べて建築費が高くなる傾向があります。広い土地を必要とするほか、屋根・外壁が面積も大きいぶん材料費や施工費がかかるためです。
そのため費用を抑えたいなら、平屋よりも低コストで同じ延べ床面積を確保できる2階建てがおすすめです。特に、1階と2階の床面積がほとんど同じ総二階の建物にすると外観がキューブ状になり、材料費と施工費を削減できます。
また、地震の揺れが均等に分散されるため、耐震性に優れているのもキューブ状のメリットです。
5.3. コツ③:水回りをまとめる
キッチンや浴室、洗面所やトイレなどの水回りは、なるべく近くに配置するのがおすすめです。水回りをまとめることで配管の数を減らせるため、材料費や工事費を削減できます。同様の理由で、2階建てでトイレを2箇所設置する場合は、上下階で位置を揃えると良いでしょう。
水回りをまとめると移動距離が短縮できるため、家事動線が効率的になるのもうれしいポイントです。
5.4. コツ④:窓や扉の数・サイズを減らす
窓や扉の設置にも材料費や施工費がかかるため、これらを見直すことでコストダウンを図れます。窓は日差しやプライバシーに配慮したうえで、必要最低限の数・サイズを設置しましょう。収納場所など空間を隠したいときは、扉ではなくロールスクリーンで代用する方法もあります。
開口部を減らすと、住まいの断熱性能が向上するため、光熱費の削減にもつながります。
5.5. 注意点:削ってはいけない費用を明確にする
万が一予算オーバーした場合でも、断熱性や耐震性、セキュリティ設備に関するコストカットはおすすめしません。
これらは、住まいの快適性や安全性に関わる重要な部分です。家は本来、命や財産を守り、心の安らぎを提供する場所であることを考えると、安易にこれらの予算を削るべきではありません。
住宅の性能は、第三者機関による評価制度である「住宅性能評価」で表されます。評価される主な項目としては、耐震性や耐久性、省エネルギー性や防犯・バリアフリー性などが挙げられます。
一建設の注文住宅は、住宅性能評価の4分野6項目で最高等級取得を標準化しています。そのため家族構成やライフスタイルに合わせて間取りを調整しても、安全で快適な住まいを実現可能です。
注文住宅を安く建てるコツや注意点は、下記も併せて参考にしてください。
>>安く家を建てる方法は?注文住宅で費用を抑えるコツや注意点も紹介
>>新築注文住宅で予算オーバーの原因|平均額や後悔なしで削る方法を紹介
6. 注文住宅の予算を決めるポイント

注文住宅の予算計画では、床面積と土地の面積も考慮する必要があります。ここでは注文住宅における予算の決め方や注意点を解説します。
6.1. 床面積と部屋の数を決める
注文住宅の予算計画において、家族構成とライフスタイルに合わせた部屋数と床面積の決定はとても重要なポイントです。30坪と40坪の注文住宅では、費用が1,000万円以上の差が出ることが多いため、慎重に検討してください。
そのためには、現在の家族構成だけでなく、将来的な変化も考慮しましょう。子どもの誕生や成長、独立など、家族のライフステージの変化に応じて必要な空間が異なります。
長期的な視点で必要な部屋数と床面積を計算し、将来的なニーズにも対応できる柔軟性のある住宅設計を心がけることが、満足度の高い家づくりにつながります。
6.2. 土地の広さを決める
床面積や部屋数を決定したあとは、土地の広さを考えましょう。土地の広さは建物の床面積だけでなく、法律で定められた建ぺい率や容積率、そしてライフスタイルにも大きく影響されます。
例えば、30坪の総2階建ての家を建てる際、建ぺい率50%の地域では最低でも30坪の敷地が必要です。さらに玄関回りやガーデンスペースなど屋外の生活空間も考慮しなくてはなりません。
また、将来的な増築や建て替えの可能性、日当たりや風通しの良さを確保するためのスペースも検討しましょう。憧れの暮らしを実現するためには、建物と土地のバランスを慎重に考え、総合的な視点でイメージすることが大切です。
6.3. 家を建てるエリアを決める
家を建てるエリアの選定は、理想と現実的な条件のバランスを取ることが重要です。まず、自分たちが望む生活環境を明確にし、それを実現できる地域を探しましょう。
同時に、通勤や通学にかかる時間も重要な要素です。長時間の通勤・通学は生活の質に大きく関わるため、学校や会社が近くになるように考慮しましょう。
ただし、各エリアの土地価格は異なり、予算との兼ね合いも慎重に検討する必要があります。理想とする環境と予算、そして日々の生活の利便性のバランスを取りながら、長期的な視点で満足できるエリアを探すことが、充実した住まいづくりの第一歩となります。
6.4. 住宅ローンの金額を決める
注文住宅の建築を計画する際、年齢や年収を考慮した無理のない住宅ローンの設定がとても重要です。返済期間は一般的に35年以内とされますが、年齢によって制限されます。
ちなみに月々の返済額は年収の25%以内に抑えることが推奨されているため、具体的な計画を立てる際には、各金融機関が提供するシミュレーションツールを活用すると良いでしょう。
ツールを使用することで、借入可能額や月々の返済額、総返済額などを試算でき、自分の経済状況に合った現実的な住宅ローンプランを立てられます。
なお、一建設のWebサイトにて「ローンシミュレーション」をご用意しており、お手軽にお試しいただけます。ぜひご活用ください。
6.5. 住宅性能やデザインの優先順位を決める
限られた予算の中ですべてを高水準にすることは難しいため、ライフスタイルや将来のニーズを考慮しながら、どの部分を重点的に投資するのか慎重に検討します。
注文住宅の最終的な予算決定には、住宅性能とデザインに関する優先順位づけが重要です。
耐震性、断熱性、省エネ性能などの基本性能と、外壁や内装のデザイン、設備の質など、さまざまな要素の中から最も暮らしやすい項目を選びましょう。
例えば、「長期的な視点でメンテナンスのしやすさに投資するか」「キッチンやリビングなど、日々の暮らしを豊かにするおしゃれな内装デザインに予算を振り分けるか」を決めるのもおすすめです。自分たちの価値観に基づいて判断しましょう。
7. 注文住宅で家を建てるまでの3つの流れ
まだ家づくりを検討している段階で、いまいち「注文住宅を建てる流れや手順がわからない……。」方もいるでしょう。
注文住宅を建てるまでの主な流れは以下のとおりです。
検討開始から実際に家を建てるまで半年~1年程度かかるため、余裕をもって動き始めましょう。
7.1. 予算を決め、理想の家をイメージする
住宅ローンの月々の支払いを考え、無理なく返済できる範囲で予算を決めます。
予算を設定したら、家族で間取りやデザインなど理想の家のイメージや具体的な条件を話し合いましょう。このとき譲れない条件や、逆に譲歩できる点・範囲などを決め、希望条件に優先順位をつけておくと、予算オーバーした際も調整しやすくなります。
7.2. ハウスメーカーと土地を探す
予算や理想の家のイメージがある程度固まったら、家を建てる土地や、施工を依頼するハウスメーカーを探しましょう。
土地と施工会社、どちらかを先に決定することもできますが、なかには土地探しをサポートしてくれる施工会社もあるため、同時進行がおすすめです。例えば、一建設では、無料で使える土地探しツール「ランディ」や飯田グループの全国未公開物件の情報を提供しています。
ハウスメーカー選びでは、複数社に見積もりを依頼し、金額や仕様、アフターサポートなどを比較しましょう。希望の家が建てられるか事前によく確認してから、土地とハウスメーカーを決定することが重要です。
7.3. 契約を結び、着工から引渡しへ進む
金額や施工内容、アフターサービスなどを総合的に判断し、最も信頼できるハウスメーカーと工事請負契約を締結します。事前に契約内容やキャンセル対応などを確認しておきましょう。
着工〜引渡しまでの期間は約4〜6ヵ月です。工事が完了したら仕上がりに問題ないか検査をおこなったあと、引渡しの手続きをおこないます。
注文住宅を建てる流れを知りたい方は、下記も併せて参考にしてください。
>>土地なしの状態から注文住宅を建てる流れは?土地探しの方法や失敗しないためのポイントも解説
8. 注文住宅でハウスメーカーを選ぶときのポイント

家づくりでは、ハウスメーカー選びで注文住宅の仕上がりや満足度が大きく変わってきます。信頼できるハウスメーカー選びの主なポイントは以下のとおりです。
8.1. 建物の品質と性能をチェックする
ハウスメーカーは、それぞれ工法(木造・鉄骨造・鉄筋コンクリート造)や設備、仕様の得意分野が異なります。地震に強い家や自然素材にこだわった家などアピールポイントは各社それぞれのため、自分たちの希望条件に合ったハウスメーカーを選びましょう。
断熱性や耐震性、設備などの標準仕様をチェックすると、メーカーの強みを把握しやすいです。
8.2. 価格帯とコストバランスを見極める
ハウスメーカーは、ターゲットとする顧客層によって、価格帯や仕様が異なります。
どのように理想の家を建てても、住宅ローンの返済で家計が圧迫されては、日々の暮らしを楽しめないため、自分たちの予算内で希望条件を実現できるハウスメーカーを選びましょう。
また、総額だけでなく、施工内容とコストバランスを見極めることも重要です。見積もりの内訳や標準仕様のグレードを確認し、何にどのくらいお金がかかっているか確認しましょう。
8.3. サポート体制や担当者との相性を確認する
ハウスメーカーの担当者とは契約前の打ち合わせから建築中、さらに入居後のアフターサービスまで長い付き合いになります。そのため担当者の人柄や自身との相性も重要な要素の一つです。相性が悪いと、遠慮して要望を伝えられない、意思疎通がスムーズにいかないなどの理由で、家の仕上がりに影響が出る恐れがあります。
また、家は完成して終わりではなく、住み始めてからが本当のスタートです。そのため定期点検の頻度や保証期間など、アフターサービスの内容の確認も重要です。
ハウスメーカーの選び方を知りたい方は、下記も併せて参考にしてください。
>>ハウスメーカーの選び方を知り、理想の住まいを実現しよう!
9. 注文住宅でよくある質問
最後に、注文住宅でよくある質問にお答えします。
9.1. 注文住宅と建売住宅はどちらにすべき?
新築戸建ての購入を検討している場合、注文住宅と建売住宅で迷われている方もいるでしょう。
注文住宅は、自分たちで一から設計を考えられるため、間取りやデザイン、設備のこだわりを反映しやすいのがメリットです。
それに対して建売住宅は、規格化された設計・仕様で販売されるため、間取り・デザインの自由度は低くなります。しかし、そのぶん材料費・施工費が削減できるため、注文住宅より低価格で手に入るのが魅力です。
注文住宅と建売住宅、どちらが良いかは予算や住まいに対するこだわりによって異なるため、より自分の価値観に合うほうを選択しましょう。
>>【違いを比較】注文住宅と建売(分譲)住宅はどっちがいい?価格差は?
9.2. 注文住宅で後悔しやすいポイントは?
注文住宅の建築でよくある後悔は以下のとおりです。
- 生活動線が不便
- トイレの数や配置を失敗した
- デザインを優先して機能性が下がった
- 日当たりがいまいちだった
- 風通しが悪く、湿気が溜まる
注文住宅は一から自由に設計できるぶん、間取りをよく考えて決めないとストレスの原因になります。図面と実際の居住空間では印象が異なるため、実際の生活や家事動線をよくシミュレーションして間取りを決定しましょう。
また、日当たりや風通しなど立地に起因する後悔も多いです。設計だけではカバーしきれない部分もあるため、時間帯を変えて何度も見学に行くなど、土地選びでも十分にリサーチを重ねましょう。
>>マイホームは後悔ばかり?【新築注文住宅で後悔だらけ】を避けるには?
10. 注文住宅の費用相場を把握しよう

注文住宅を建てる際は、まず費用相場を十分に把握することが大切です。地域や規模、仕様によって価格は大きく変動するため、複数のパワービルダーやハウスメーカー、工務店に見積もりを依頼し、比較検討をおすすめします。
ただし、単に価格の安さだけでなく、品質やアフターサービス、会社の信頼性なども考慮するのが大事です。契約してから後悔しないように、適正な価格で自分自身に合った注文住宅を建てましょう。
一建設の注文住宅を見る
はじめの注文住宅
一建設株式会社は、一戸建て住宅販売戸数日本一※1の飯田グループホールディングスの中核企業です。
ローコストとまじめに向き合い大満足のマイホームを実現します。
建築コストをおさえたマイホームを手に入れ、家計的に身軽になることで、
子どもの学費、家族との旅行や趣味、老後の建替え費等、より豊かなゆとりの生活ができます。
リーズナブルにマイホームを建てると安心した将来設計が可能になります。
※1. 出典:日経業界地図2023年版
ご自宅の売却・引越し(住み替え)も一建設にお任せ
一建設の『ラクいえ売却』
住み替えによる不安を無くすために生まれた、一建設の『ラクいえ売却』。
住まいが売れるタイミングと新しい住まいが見つかるタイミングを合わせる必要がなく、
愛着のある住まいが高く売れるまで交渉する手間もありません。
ダブルローンをはじめとする自宅売却のお悩みを解消します。
- #売却後も1年間賃料無料で住み続けられるからゆとりをもった住み替えが可能
- #引越し費用を最大50万円一建設が負担で手厚くサポート
- #新生活に嬉しいキャッシュバック制度あり
- #一建設の取り扱い物件以外も売却可能
よく読まれている人気記事
-
2024.05.10 | 注文住宅
注文住宅のオプション53選!新築でやっておけばよかったと後悔しないための選び方や費用相場を紹介
注文住宅を建てたり新築住宅を購入したりする際、標準仕様とは別にオプションが設定されているケースが多くあります。オプショ...
-
2024.10.28 | 費用・制度
注文住宅の費用相場は?価格帯・広さ別の相場と費用を抑えるコツを解説
「注文住宅を建てたいけど、一体どれくらいお金が必要なんだろう……。」と疑問に思っている方もいるのではないでしょうか。そ...
-
注文住宅(新築)のお風呂で後悔しないこだわりの選び方!おしゃれな浴室も紹介!
2024.05.10 | 注文住宅
-
「平屋はやめたほうがいい?」平屋のメリット・デメリットを9つずつ解説
2024.09.24 | 平屋
-
ローコスト住宅がやばいと思われるのはなぜ?後悔しない選び方も解説
2024.09.11 | 注文住宅
おすすめ記事
-
2025.12.12 | 注文住宅
カーポート設置で注意すべき建ぺい率とは。2025年4月の法改正についても解説
家づくりの際は、敷地面積に対して建物が占める割合を示す「建ぺい率」が建物の大きさや形、配置に大きく影響します。 ...
-
2024.09.24 | 注文住宅
家を建てるのに必要な期間は?家を建てる流れと最短で完成させるためのポイントを解説
家を建てようと決めてから、実際に注文住宅が完成するまでには、一体どのくらい期間がかかるのでしょうか? 「そろそろ...
-
建ぺい率・容積率とは?家を建てる前に知っておきたい基礎知識
2025.03.10 | 費用・制度
-
平屋とは?平屋のメリット・デメリットと建築実例をご紹介
2025.02.13 | 平屋
-
【違いを比較】注文住宅と建売(分譲)住宅はどっちがいい?価格差は?
2024.03.15 | 費用・制度
新着記事
-
2026.01.19 | マイホーム
2階リビングの魅力とは?メリット・デメリットと後悔しないためのポイントを解説
立地条件によっては、1階にリビングを設けると、十分なスペースや日当たりを確保できないケースもあるでしょう。 その...
-
2025.12.12 | マイホーム
ウォークインクローゼット設置のおすすめの間取りとは?注意すべきポイントや建築実例を紹介
衣類や荷物が増えるほど、「スッキリ片づく収納がほしい」と感じる方は多いでしょう。そんな願いを叶えるのがウォークインクロ...
-
シューズインクローゼットとは?シューズクロークとの違いや種類、メリット・デメリットを解説
2025.12.12 | マイホーム
-
カーポート設置で注意すべき建ぺい率とは。2025年4月の法改正についても解説
2025.12.12 | 注文住宅
-
家を建てるには何をすればいいのか。流れや費用などの基礎知識と4つの注意点!
2025.12.01 | マイホーム












