『暮らしとともに成長する、
あなただけの自由空間』
固定概念にとらわれない柔軟な発想で
生まれた「フリースペース」が、
あなたの暮らしに
無限の可能性をもたらします。
今日は書斎、明日は子どもの遊び場、
来年は趣味の部屋として。
家族の成長やライフスタイルの変化に
寄り添いながら、いつまでも
新鮮な住み心地を提供する
『進化し続ける住まい』をお届けします。
目指したのはどんなニーズにも応えられる
「対応力の高い商品」ココカラオリジナルは
空間提供型アイデア住宅です。
MERIT COCOKARAORIGINALのメリット
MERIT 01
自由なカスタマイズ性:
書斎・DIYルーム・クローゼット
など
生活スタイルに合わせてアレンジが可能
MERIT 02
開放感のある住空間:
吹き抜けと間仕切りの少ない設計による
広々とした居住空間
MERIT 03
高い住宅性能:
住宅性能評価6項目で最高等級取得の安心・安全性
MERIT 04
ライフステージ対応:
家族の成長に合わせて間取り変更が可能
MERIT 05
個性的な住まい実現:
分譲住宅でありながら注文住宅的な満足感
MERIT 06
おうち時間の充実:
フリースペースや多用途空間での豊かな生活
FEATURES COCOKARAORIGINALの特徴
POINT 01 広々開放的なLDK
繋ぎ廊下をなくすことで開放的な生活空間を確保。
吹き抜けの階段で家族とコミュニケーションもとりやすく。
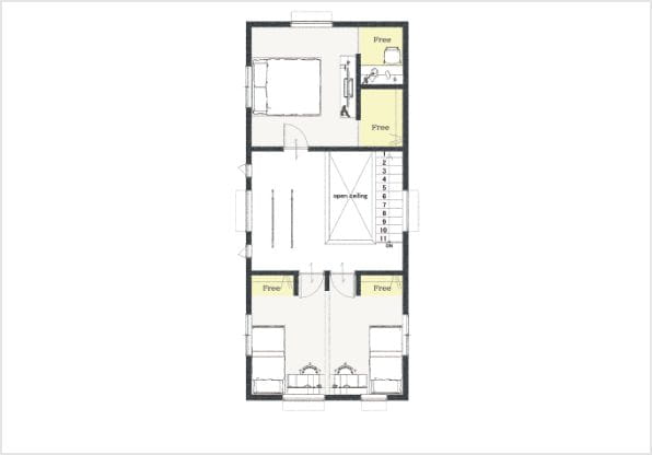
POINT 02 収納建具を付けない自由な空間
用途が限られていた空間を自分スタイルにアレンジできる楽しみ。
書斎、DIY ルーム、クローゼットなど…思い通りにカスタマイズ。
POINT 03 スマートなキューブ型外観
凹凸のないスタイリッシュな形ですっきりとまとめました。
POINT 04 吹き抜け
明るい吹き抜けで開放的な空間を提供。
どこにいても家族の気配を感じることができます。
POINT 05 2Fホール
2階中央に位置するホールを室内干しやセカンドリビングとして活用。
効率よく風を取り入れ、室内に風の流れを生み出すシーリングファンを取り入れました。
POINT 06 多目的に使える広い土間玄関
自転車も置ける広さを確保した土間玄関。
ディスプレイ収納・グリーンでやさしいエントランスなど趣味や自分らしさを表現できる空間に。
POINT 07 「2LDK→3LDK+α」の間取り変更が可能
家族構成やお子様の成長などライフスタイルの変化に合わせて柔軟に対応出来る間取り。
PLAN 参考プラン
1階LDKの吹き抜けから2階の広々ホールへ自由で開放的な空間が広がる、室内に物干しスペースを設けたバルコニーの無い商品。
| 建築面積 | 49.68㎡(15.03坪) |
|---|---|
| 延床面積 | 95.63㎡(28.93坪) |
| 1F床面積 | 49.68㎡(15.03坪) |
| 2F床面積 | 45.95㎡(13.90坪) |


※写真内の家具・調度品等は配置例(CG加工)であり、販売価格には含まれません。
RECOMMENDED こんなお客様におすすめです
-
生活感を出さずおしゃれで
スタイリッシュな
住まいで
生活をしたい -
家族の成長に合わせて
自由度の高い生活空間
での
暮らしをしたい -
書斎やDIYルームなど、
自分だけの空間を
確保したい -
従来の分譲住宅は画一的で
個性がないと感じる -
注文住宅は高額で
手が届かない -
子どもの成長とともに間取りが
合わなくなっている方
